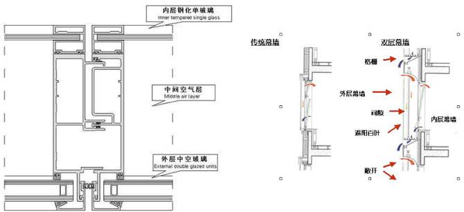
 雙層幕牆又稱熱通道幕牆、呼吸式幕牆、 通風式幕牆、節能幕牆等。由內(nei) 外兩(liang) 層立麵構造組成,形成一個(ge) 室內(nei) 外之間的空氣緩衝(chong) 層。外層可由明框、隱框或點支式幕牆構成。內(nei) 層可由明框、隱框幕牆、或具有開啟扇和檢修通道的門窗組成。也可以在一個(ge) 獨立支承結構的兩(liang) 側(ce) 設置玻璃麵層,形成空間距離較小的雙層立麵構造。
內(nei) 外幕牆之間形成一個(ge) 相對封閉的空間。其下部有進風口,上部有排風口,可控製空氣在其間流動狀態。設有可控製的進風口、排風口、遮陽板和百葉等。利用氣壓差、熱壓差和煙囪效應的原理使雙層幕牆之間的空氣可有序流動和交換。 雙層幕牆包括幕牆外層、幕牆中部空間和幕牆內(nei) 層,其中表麵外層抵製天氣的變化並提高隔聲能力。
一、主要特點:
1、使建築外層有效地適應自然天氣變化,提高幕牆的保溫隔熱性能。
2、提高幕牆的隔聲性能,改善室內(nei) 條件。
3、由於(yu) 通風換氣,提高了人們(men) 工作、生活環境的舒適性。
二、主要分類:
根據空氣流的循環方式可將雙層幕牆分為(wei) 外循環式雙層幕牆和內(nei) 循環式雙層幕牆兩(liang) 種,另外隨著幕牆技術的發展,還出現了綜合內(nei) 外循環方式的新型雙層幕牆。
1、外循環式雙層幕牆

外層幕牆采用單層玻璃,在其下部有進風口, 上部有排風口。內(nei) 層幕牆采用中空玻璃、隔熱型材,且設有可開啟的窗或門。它無需專(zhuan) 用機械設備,完全靠自然通風將太陽輻射熱,經通道上排風口排出室外。從(cong) 而節約能源和機械運行維修費用。夏季開啟上下通風口,進行自然排風降溫。冬季關(guan) 閉上下通風口,利用太陽輻射熱經開啟的門或窗進入室內(nei) ,可利用熱能和減少室內(nei) 熱能的損失。
2、內(nei) 循環式雙層幕牆


外層幕牆采用中空玻璃、隔熱型材形成封閉狀態。內(nei) 層幕牆采用單層玻璃或單層鋁合金門窗,成可開啟狀態。利用機械通風,空氣從(cong) 樓板或地下的風口進入通道,經上部排風口進入頂棚流動。
由於(yu) 進風為(wei) 室內(nei) 空氣,所以通道內(nei) 空氣溫度與(yu) 室內(nei) 溫度基本相同,因此可節省采暖與(yu) 製冷的能源,對采暖地區更為(wei) 有利。由於(yu) 內(nei) 通風需要機械設備和光電控製百葉卷簾或遮陽係統,因此技術要求較高,且經濟成本較大。
3、綜合內(nei) 外循環的雙層幕牆
並不僅(jin) 僅(jin) 拘泥於(yu) 內(nei) 循環或外循環的單一循環方式,具有更加靈活的對外界天氣、氣候狀況的靈活適應性。例如對夏季和冬季具有更好的兼顧性,並且減少了對其他係統(如新風係統、製冷係統等)的依賴性,有利於(yu) 提高綜合節能效果。
通道設置一般隻作通風用,其寬度為(wei) 100~300mm。有檢修、清洗要求時,其寬度為(wei) 500~900mm。當作休息、觀景、散步時其寬度
為(wei) >900mm,並設有格柵。
三、工程案例:
杭州市民中心

|